Aan de Louis Pasteurstraat in Schalkwijk bouwen we 179 appartementen. Op deze plek komt ook het kantoor en de woonwinkel van Elan Wonen. Vanaf januari 2026 komen de woningen op Woonservice. De eerste woningen worden vanaf april 2026 opgeleverd.
Nieuwbouw appartementen
Elan Wonen bouwt 154 sociale huurwoningen en 24 middeldure woningen. Het gaat om 2- en 3-kamerappartementen, verdeeld over 3 gebouwen. Elk gebouw heeft een eigen entree:
Blok A: 44 sociale huurwoningen en 18 middeldure woningen
Blok B: 53 sociale huurwoningen en het kantoor van Elan Wonen
Blok C: 57 sociale huurwoningen en 6 middeldure woningen
Wilt u hier een woning huren?
Vanaf januari 2026 komen de woningen op MijnWoonservice. We plaatsen de woningen in delen: ongeveer 10 tegelijk. We beginnen met Blok C. U heeft 3 werkdagen om te reageren op een advertentie. De laatste woningen komen eind februari online.
Belangrijk:
Schrijf u in bij MijnWoonservice.
Kijk vanaf januari regelmatig op MijnWoonservice of in de DAK-app.
Let op: er zijn geen bezichtigingen mogelijk.
Kenmerken
2- en 3-kamerappartementen
40 m² tot 73 m²
4 of 5 woonlagen in gebouw
Berging op de begane grond
Woningen zijn gasloos, bewoners koken elektrisch
Vloerverwarming
Parkeren op de openbare weg
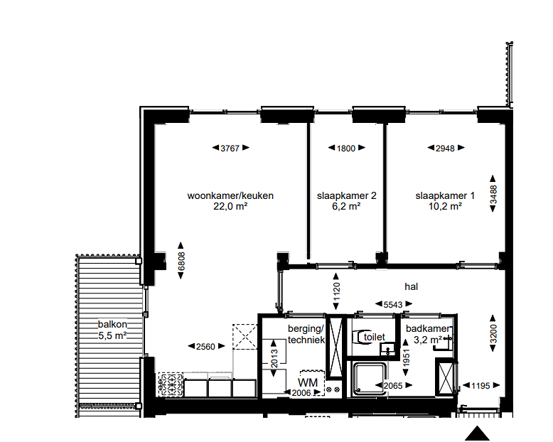
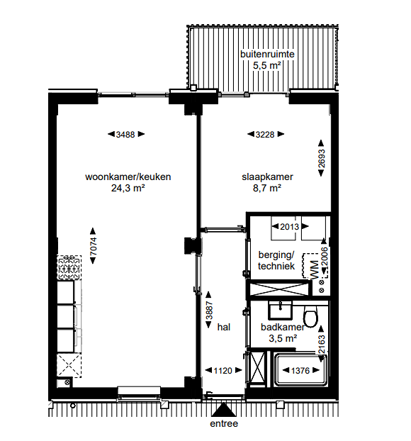
Plattegronden
Hier ziet u voorbeelden van de meest voorkomende plattegronden van de sociale huurwoningen. Er zijn meerdere typen woningen, en de indeling kan verschillen. Wilt u weten welke plattegrond bij een specifieke woning hoort? Kijk dan bij de advertentie op MijnWoonservice. Daar vindt u de plattegrond van dat woningtype.
2-kamerappartement
3-kamerappartement


Let op: aan deze plattegronden kunt u geen rechten ontlenen.
Energiezuinig en comfortabel
De woningen zijn duurzaam en comfortabel:
Merendeel van de woningen is gebouwd met hout (gezond en minder CO₂-uitstoot)
Goed geïsoleerd en veel daglicht
Gasloos, met 3 zonnepanelen per woning
Moderne installaties voor een prettig binnenklimaat en lagere energiekosten
Volg de bouw live
Benieuwd hoe het project vordert? Bekijk de livestream van de bouwplaats:
Planning
Start sanering: september 2024
Start sloop: oktober 2024
Start bouw: december 2024
Oplevering in fases vanaf april 2026
Samenwerkingspartners
Gemeente Haarlem
HBB Groep
FARO Architecten
Finch Buildings
Maat feeling home
Hosper
Nieuwsbrieven
Meer informatie
Heeft u een vraag over dit project? We hebben een overzicht van de antwoorden op vragen gemaakt die wij regelmatig krijgen. Of neem contact op met onze Klantenservice op (023) 515 98 59.