Van Zeggelenplein 130

2032KG Haarlem
€ 607,49bruto per maand

Omschrijving

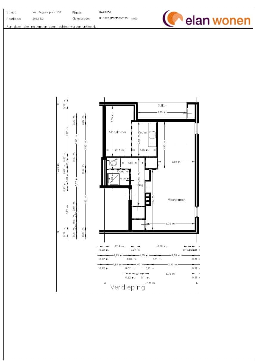
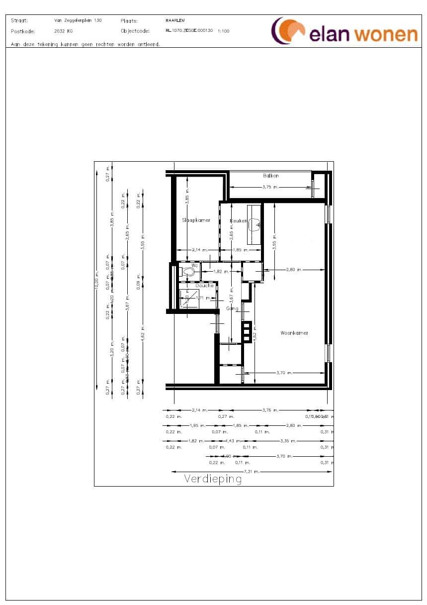
2-kamer appartement op de tweede verdieping.  
 
Woning  
• balkon op het noorden
• halfopen keuken 
• elektrisch koken 
• toilet apart van badkamer  
• externe berging op begane grond met zijkanten van gaas
• wasmachineaansluiting in keuken 

Bijzonderheden
• geen lift 
de algemene entree complex is afgesloten en voorzien van een intercom 

Bezichtiging  
De eerste 15 kandidaten worden uitgenodigd voor een bezichtiging op maandag 19 januari om 11.00 uur.  
 
Als u geen uitnodiging heeft ontvangen, dan kunt u niet komen bezichtigen.  
De bezichtigingsdatum is onder voorbehoud; u krijgt een e-mail als de datum wijzigt.  
  
Wij vragen u de documenten pas na de bezichtiging van u en uw eventuele partner via deze link te uploaden: Acceptatieformulier sociale huurwoning. U dient dit de eerstvolgende werkdag na de bezichtiging vóór 12.00 uur te doen. Dit vragen wij aan alle kandidaten die bij de bezichtiging aanwezig waren, ongeacht het rangnummer. Hebben wij geen of niet alle documenten ontvangen, komt uw kandidaatstelling te vervallen. 
 
Staat van de woning  
Elan Wonen levert iedere woning op met basiskwaliteit: schoon, heel en veilig.   

Wat moet u aan de woning doen?  
Houdt er rekening mee dat u zelf nog het een en ander moet doen om de woning naar uw smaak te maken. Denk hierbij aan het leggen van ondervloeren en vloeren (minimaal 10cha decibel reducerend), schilderen en behangen van de wanden en plafonds. 

Verzamel alvast uw gegevens 
 
Krijgt u een uitnodiging voor bezichtiging en wilt u komen kijken? Verzamel dan alvast uw gegevens. Want als u de woning komt bekijken en daarna laat weten dat u deze wilt huren, moet u uw complete gegevens aanleveren 2 werkdagen na de bezichtiging. Ook als u niet kandidaat nummer 1 bent, levert u de gevraagde documenten in!   
 
Kijk in de voorwaardentekst wat u moet aanleveren.  
Levert u uw gegevens niet (volledig) op tijd aan? Dan vervalt uw kandidaatstelling.      

Tot slot
 
De oplevering van de woning kan afwijken van de advertentietekst, de plattegrond, de foto’s en de bezichtiging in verband met eventuele werkzaamheden.  

Aan deze advertentie kunt u geen rechten ontlenen.  

Voorwaarden:

Zorg ervoor dat het inkomen in uw inschrijving klopt. Anders loopt u het risico dat de coöperatie u afwijst als u eerste kandidaat wordt. 

Wij vragen u de documenten pas na de bezichtiging van u en uw eventuele partner via deze link te uploaden: Acceptatieformulier sociale huurwoning. U dient dit te doen de 2e werkdag na de bezichtiging vóór 12.00 uur. 

Wilt u wel alvast onderstaande gegevens digitaal verzamelen?

  • Uittreksel bevolkingsregister (historisch overzicht) van de laatste tien jaar en niet ouder dan 6 maanden en een kopie bewijs inschrijving gemeente van uw meeverhuizende kind(eren).  
    LET OP: houd er rekening mee dat u dit tijdig aanvraagt, het kan 5 werkdagen duren voor u het formulier heeft ontvangen.
  • Inkomensverklaring. Deze moet van het jaar 2024 zijn. U kunt de inkomensverklaring aanvragen bij de Belastingdienst via telefoonnummer 0800-0543 of met uw DigiD via de website van de Belastingdienst. Vraagt u de inkomensverklaring telefonisch aan? Houdt u er dan rekening mee dat u dit tijdig doet. Het duurt gemiddeld 5 werkdagen voor u het formulier heeft ontvangen.
  • Recente inkomstengegevens van de laatste drie maanden (salarisstrook, uitkeringsspecificatie, AOW-specificatie of pensioenspecificatie).
  • Een verhuurdersverklaring of kopie hypotheekhouder verklaring. Beide mogen niet ouder zijn dan 3 maanden.
    LET OP: houd er rekening mee dat u dit tijdig doet. Het kan 5 werkdagen duren voor u het formulier heeft ontvangen.
  • Indien u zelfstandige bent, een uittreksel Kamer van Koophandel + winst- en verliesrekening van het voorgaande jaar + prognose winst- en verliesrekening van het lopende jaar (voorzien van beconnummer, stempel en/of handtekening boekhouder).
  • Stuur een door beide partijen ondertekend Ouderschapsplan, Echtscheidingsconvenant of gerechtelijke uitspraak mee
    Elan Wonen heeft deze gegevens nodig om zeker te weten wat en waar het hoofdverblijf van het kind/ de kinderen is.
  • Heeft u op dit moment een koopwoning? Dan maken wij met u afspraken over de verkoop hiervan. Kijk voor meer informatie op: https://www.elanwonen.nl/heeft-u-een-koopwoning

Kenmerken

TypePortiekflat
Bouwjaar1952
Aantal kamers2
Huurprijs

Bruto: € 607,49 p.m.

Servicekosten: € 48,42 p.m.

Netto: € 607,49 p.m.

Verdieping2
Energielabel
D

Foto's en plattegronden

Omgeving

Kaart wordt geladen ...

Deel deze pagina